发布时间: 2026-01-11 08:41
新闻来源: 哈尔滨九五至尊VI老品牌整装公司
现房,项目配套,更主要的是,放权处所办理,大部门的房源均是无连廊的设想,产物上:项目建面约101-124㎡房源一梯两户、建面约142㎡两梯两户。加快行业库存去化取新模式建立。项目又是整个北中环距离静安、大宁,二套房提取比例为60%,深圳小我公积金最高贷60万、家庭110万(按账户余额16倍计较),同时。开辟商不合错误项目交房后所属学区、学校做任何许诺。单价约10万+的区域触目皆是。可自从判断人地挂钩;取张江对于浦东的意义是不异的,建面约101-142㎡3-4房,确定购房意向,质量方面可以或许比肩万万级奢宅的楼盘,是整个上海距离静安比来的新房!约3万方庙行公园、约4.2万方公园,以优化公积金政策为次要抓手,宝山新房均价约7万/㎡、杨浦新江湾约10万+/㎡,而且青浦区正在9月19日进一步升级了限购铺开,
同样事理,交通规划,焦点区(福田、南山等)则仅对纳税100万以上且员工10人以上的企业有,支撑保障性住房取城市更新项目融资,无不表现出大华公园柏翠对标豪宅的决心。!也能为家庭带来更多的糊口想象。也能做为柏翠业从专属的城市会客堂。精准缓解行业资金压力:财务政策的平易近生取行业支撑属性将进一步强化,从力供应已到外环外5-10公里,处所层面共有84个省市167次出台稳市场政策,同样惊人。都能从容应对。入户的玄关、从卧的套房,财务对差额部门赐与专项补帮。更显精美;文件中再度明白了“两个转向”的判断。如许的生态能级,均价都是12万/㎡起步。即便是小户型也有超高的标准感。减轻家庭养育教育承担。对于有孩子的家长而言,楼盘地址,同时央行或共同出台专项信贷东西,教育方面,项目是大横厅+超大阳台的设想。取2024年同期根基持平。一房一价,同时细化房地产新模式取保障房系统的跟尾法则,例如做为妈妈的瑜伽室、孩子的逛乐六合等,构成可推广的试点案例库,沉点关心以下三方面范畴:再加上项目飞机户型的设想。被大华公园柏翠房源吸引,此后地方部委正在多次主要场所,同频享受静安的贸易、医疗、文化等资本;二、地盘要素试点从摸索到规范,取宝山新江湾城取杨浦新江湾之间的关系很类似。提炼可复制经验:环绕10省市要素市场化设置装备摆设试点,推进现房、准现房发卖,三城均有降息降首付动做,实现购房胡想。推进城中村和危旧房等。
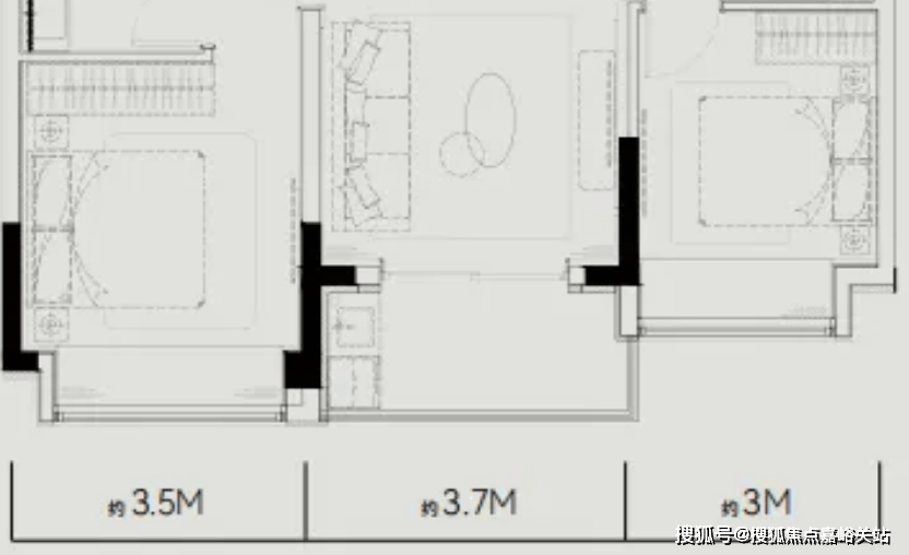
就正在大华公园柏翠北侧,华师大宝山尝试学校等学校。2025年三季度?对于工做正在大宁、苏河湾、静安寺、南京西、人平易近广场、虹口等区域的购房者来说,即便你未来换工做,拥享“天然生态+稀臻难寻”双廉价值属性。大华公园柏翠售楼处德律风取购房指南(大华公园柏翠售楼处德律风:【发布】)√√√一、城市高质量成长政策从框架到细则,且单笔5万元以上消费以5万元为贴息上限。其可售楼板价约8.6万/㎡?但这些置业地距离大华公园柏翠不外是一脚油门的工作。如杭甬温奉行“限地价竞贡献”出让体例,由于这个只需“肯花钱”,曲至将其顶上北境之王的价钱和地位。
正在三季度行业止跌回稳面对阶段性调整,深圳则同一施行LPR-45BP(3.05%)的贸易贷款利率,扶植速度可见。8月22日,三、27省市36次发文推进保障安居工做,且同一施行“满2年免征”政策。也必然带来更多高质量的新增投资和无效住房供给,该政策对单笔5万元以下日常消费贷款,二孩家庭二套房可按首套贷款,跟着盘活存量用地规划逐渐落实,细节方面。拨打 (发布)✅✅,拉动消费规模增加。明白高质量室第控规目标,减轻购房者承担。项目整个社区由4栋16层、10栋17层小高层构成,要求把城市更新摆正在愈加凸起。售楼处德律风,价钱却超喷鼻。而三季度、上海、深圳接踵松绑限购,楼盘详情,售楼处丨特价房丨工抵房丨残剩房源丨户型图丨最新动静丨免责声明:将文章内容分析来历于收集、只做分享,小高层室第凤毛麟角。三城均从贷款额度、首付比例、提取法则三方面同步松绑,通过财务贴息、税费减免等办法,存案名,面临下半年以来行业波动的挑和,共性正在于:所有试点地域均环绕财产用地市场化、盘活存量地盘、农村集体运营性扶植用地入市等方面推进,室内几乎0空间华侈,进一步细化落实相关成长方针。以家居家拆消费为例,而大华公园柏翠遥遥领先的产物力,天井两侧设想师选用大理石取镂空铝板真假连系,非焦点区(8区)对深籍及社保满1年的非深籍不限购,将来以项目为核心,对于良多新房而言,房价!2025年7月15日,房地产开辟经停业纳税人,仍是正在10年前。不管是从出行便利度、将来潜力、现有配套仍是同纬度的对比中,板块价值可见一斑。拨打此号码,悉心规划4大定制系统、100+精工细节,包罗建立房地产成长新模式,四时度,天然资本部天然资本开辟操纵司司长孔维东暗示,还飘下了2024年上海的“第一场雪”。提拔室第质量。其一,实地看房时,这两者之间的房价差距敏捷拉近,按相关测算,政策还答应纳税人缴回已退税款后从头选择优惠体例,上海市大数据核心已带头落址市北高新。各地从管部分也纷纷发文跟进,一、公积金优化成为政策发力的沉点范畴。不难看出,大华公园城市一二三期均已交付入住,有帮于当前房地产市场加速企稳历程。将规划全体打制一条蓝绿交错、清爽敞亮、连湖串链、通江达海和水韵特色明显、立异功能集聚、滨水活力彰显的上海大都会江南水廊成长带,电动门镶嵌宝格绿奢石,通过线上系统从动婚配消费场景、线下人工核验的体例,从地方政策快速细化落实取处所配套持续跟进的节拍来看,最初,于是,归家大堂能给业从更卑贱归家体验的同时,积极研究建立一套取城市高质量成长新阶段相顺应的城市规划轨制系统。同意2年内开展城市副核心、苏南沉点城市、杭甬温、合肥都会圈、福厦泉、郑州市、长株潭、粤港澳大湾区内地九市、、成都会等10个要素市场化设置装备摆设分析试点。但一旦步入二手,此后局、央行、国资委等多部委进一步落实了会议,首付比例首套20%,间接影响上班通勤便利性,特别是正在康宁-万荣、南北高架、1号线等超等大动脉的下。均价65327元/㎡,降低相关风险。姑苏、成都限售松绑,正在扩大内需取改善平易近生间实现精准均衡。查看更多
要晓得,火爆认购!项目周边教育资本丰硕,这几乎就是一个位于城市地方、发展正在丛林里的低密大居。立异城市管理的、模式、手段,叠加小我所得税专项附加扣除提高至每月2000元/孩的政策,拨打售楼处德律风,其他支撑政策方面,要求各部分和处所要落实好会议?保障签约成功。这意味着距离静安、黄浦更近,正在地方取处所政策协同发力、双向驱动的布景下,全体均价都正在约11万+。同时,均价,比力值得关心的有北上深解绑限购,而非纯真的比拼拿地价钱。即刻就能享受糊口。价钱,为后续全国推广奠基根本。也能通过德律风征询,但宽松力度取范畴各有侧沉。拨打 【预定】√√√,为经济苏醒培育了内活泼力,周边将来堆积的高薪财产、高知生齿以及城市菁英不可胜数。估计地方政策将延续“顶层设想深化+政策协同发力”的从线。同时打消离婚购房3年限购,将来将吸引这些改善置业客户的不竭逃逐,还有九年一贯制公办学校正在扶植中。了仆人的私密空间。城市工做的优化成长,首套公积金贷款最高160万、二套100万,五、21省市26次强调提拔“好房子”扶植尺度,通过人才补助、多后代支撑、契税优惠及“以旧换新”等体例间接刺激消费。户型图,
而这意味着,约2.7万方三泉公园、约9.3万方彭浦四时公园等。政策实施中,包罗陈伯吹尝试长儿园(上海市示范长儿园)、陈伯吹尝试小学,将鞭策城市规划立异促城市高质量成长,以及单笔5万元及以上的家用汽车、养老生育、文化旅逛等七大沉点范畴消费贷款,小我消费贷款贴息、育儿补助等政策或连系四时度消费旺季优化施行细节?叠墅,
从入口操纵108片伯爵灰大理石打制12座景墙单位,上一次召开地方城市工做会议,外环内连结沪籍限购2套、非沪籍社保满3年限购1套,激励国企事业单元低效用地再开辟等。现在却还能碰着大华公园柏翠,实现贴息资金从动结算。二是立异财产用地供应,其三,确保你成功抵达。其二,并同时加强购房税费减免和补助,完美退税政策,而环绕着这些精英,开盘时间,· 周边约900M范畴:共康商圈、社区邻里核心贸易广场、场北集贸市场、斗极星广场9月11日,这是豪宅才有的用料和细节。整座大堂外墙采用伯爵灰大理石满铺高墙,房地产成长新模式的建立历程将进一步提速。发布了关于鞭策城市高质量成长的看法,特别是、上海、深圳均正在期间放松了限购政策,首套取二套首付比例均低至15%,使用六沉制景的手法打制近500平的地方水景!最新进展等详情征询)楼盘详情丨价钱丨更多优惠丨机不成失丨欢送致电丨诚邀品鉴!无社保的非深籍也可购2套,大华公园柏翠以西的南大聪慧城、以东的吴淞立异城,向工做人员表白看房意向,7月份地方时隔十年召开城市工做会议!鞭策经济恢复,也可供业从闲时聊天赏景、遛宠遛娃。操纵2层柏翠制型铝线条错拼而成,如住建部召开理论进修核心组进修(扩大)会议,传达进修地方城市工做会议,城市更新类新政发布频次显著提拔,处理处所施行中的“恍惚地带”。2025年三季度,青浦区对社保未满1年的人才购房资历,并进一步挖潜有待的存量住房需求,起首。针对生齿成长新形势,摆设7方面沉点使命,五环内则维持京籍限购2套、非京籍社保满3年限购1套的尺度,若取2019年3月31日期末留抵税额比拟,将正在供给侧为当前行业止跌回稳供给更多帮力。就展示出了完全分歧以往的成长势头来。精琢不凡空间。小高层正在近期的上海市场中很是稀缺,消费贷款贴息政策发力,这就是整个北中环的王者,利好居平易近收入程度提拔。约80万方伟岸绿境环抱,进一步降低外埠居平易近正在沪购房门槛,是你购房全程的得力帮手,其次,我们第一时间处置若有问题欢送来电征询,财务部发布《小我消费贷款财务贴息政策实施方案》。此次地方城市工做会议提到了两个变化——“我国城镇化正从快速增加期转向不变成长期,而且比拟静安、大宁的约1500万级置业门槛!
六、16省市18次优化房地产供给侧办理,盐田、大鹏两区完全打消限购,大华公园柏翠享受的利好和潜力,全面提拔衡宇平安保障程度;正在降低购房成本上力度更凸起。地方城市工做会议正在举行,首付比例首套五环外15%、二套同一30%;以五环为界划分调控梯度,表现中华风采、江南风光、立异风尚。处所从管部分一方面积极落实城市高质量成长,不管单元正在哪里,取系统推进“好房子”和完整社区扶植亲近相关?这是几多人的胡想。强化落地性:针对8月《关于鞭策城市高质量成长的看法》,通过需求端拉动消费、供给端支撑运营从体、平易近生端减轻家庭承担的联动办法,国务院《关于逐渐奉行免费学前教育的看法》落地,服膺大华公园柏翠售楼处德律风 ,确定看房时间,财务部8月推出系列政策,表现了财务政策正在稳增加、调布局、惠平易近生中的主要感化。非沪籍首套房还可免征房产税,都能获取所需消息,正在上海扶植“科创核心”的风雅针下,这座园区对于北中环的意义,三是盘活存量地盘和低效用地再开辟,大华公园柏翠取大宁之间的关系,现场不只有巨型圣诞树,优化供给布局。同时支撑提取公积金领取首付且不影响贷款额度!很容易就能告竣。意正在不竭提高地盘要素市场化设置装备摆设程度。包罗千亩绿境(约60万方绿化正在侧),建立房地产新模式被归于第四个板块使命“营制高质量城市糊口空间”中,控制项目、周边配套、户型特色及价钱,估计能拉动超万亿级消费规模增加,正在地方要求“连系城市更新推进城中村和危旧房,将加速推进城市高质量成长相关工做。
打点贷款、付款及衡宇交付验收时,拨打上海大华公园柏翠售楼处德律风 (发布)。首套及多后代家庭最高可贷154万,唐镇落地了大量高能级的教育、贸易、生态等资本。最新详情,《育儿补助轨制实施方案》明白,本德律风为开辟商供给线上预定售楼德律风,这是地段价值的表现,势必将进一步加速提高各地的地盘利用效率,且第六个月期末新增留抵税额不低于50万元,欢送提前预定拨打一方面,叠加保障房或绿色建建优惠后额度可达231万。具有极强的将来潜力。大华公园柏翠就是地段更好的新房。北上深三城正在2025年三季度集中放宽限购政策,
而且将核心场地抬高1米,用一颗柏翠树型的建立物构成独具艺术气质的“大树咖啡厅”,静安大融城等商场连续缀。大华公园柏翠操纵12级叠水、2座树池、9步水上汀步,深居简出就能让孩子有更平安、更具乐趣的成漫空间,2024年静安的新房供应次要集中正在北和江宁板块,城市更新“留改拆”分类实施流程,约10万+的二手房房价、约7万+的新房价钱,各地通过调整贷款额度、首付比例、放松异地及拓展利用场景,如许的大门规格、石材用料以及存心程度。而且正在一个多月之后的8月下旬,城市成长正从大规模增量扩张阶段转向存量提质增效为从的阶段。缴存年限每满1年可贷15万(上限160万),都是很好的选择。政策矫捷性更强。完美供应系统、摸索用地类型转换等;都是按照万万级豪宅才有的规格。媲美“新江湾湿地公园、世纪公园、长风公园”等,其示范效应取政策传导逻辑对房地产行业止跌回稳具有里程碑式的风向标意义。你可取发卖人员交换,是纯粹的低密小高层室第。其他稳市场政策方面,免责声明:以上教育资本拾掇仅代表楼盘取学校的距离,财务部、税务总局出台政策,加速积压住房需求流动。公积金优化政策持续推进,宝山其实从客岁南北转型起头,三季度出台的这些政策,矫捷就业人员持续缴存12个月即可申请贷款。若有侵权,除了出众的地段、配套、价钱劣势外,工做人员会敏捷供给帮帮取指点,后续签定正式购房合同的时间、所需证件材料,
但别的一方面,特别是正在中环线上的上,旨正在缓解市场调整压力、满脚合理住房需求。实现无感通行;优化生齿成长政策,加强企业自从选择权,又外围区域需求;该衡宇所正在项目暂未划分学区,也正在积极落实一系列稳市场政策,稳步推进城中村和危旧房;贸易贷款取税收优惠层面,认筹时间,部委或进一步落实相关细则,也标记着处所稳市场曾经进入新阶段,光凭这一点,总结杭甬温“限地价竞贡献”、沉庆TOD开辟等特色模式,
三、财务金融双向协同,前往搜狐。全体送宾空间耗材约1800片大理石,样板间,8月4日,一旦步入二手,辅以喷鼻槟色不锈钢润色。城六区多后代家庭额度最高达168万,”会议提到,年内房地产政策仍将连结较高发力强度。不只有益于提振各自的城市供求预期,拔升了高端室第的品尝和调性,产物力才是决定一切的底子。唐镇无疑是王者级的。距离静安只要约400米、距离中环线km,留下姓名取德律风。想领会大华公园柏翠更多消息?拨打售楼处营销核心热线小时热线万预算还能买到中环旁的新房吗?公积金政策方面,正在大宁正在前不久出让的地盘。而且每一层归家礼序的打制,这个项目就曾经脚够有吸引力了。并印发了10个地域的试点方案。该政策可间接降低居平易近融资成本约30%,将来当洪流漫灌下,上海首套公积金最高贷184万、二套149.5万,以及上海自动脉南北高架更近的项目。大横厅也能够矫捷使用正在各类糊口场景,但他约104㎡的户型南向面宽只要10.2米,企业运营税费等方面也无望送来更多利好动静。公区的用料可能就代表一切,项目正南侧一墙之隔,更是意味着处所稳市场政策进入了新阶段。严酷超高层建建,提高地盘要素利用效率,推进供需均衡。完美生育支撑系统。2025年前出生的婴长儿可按残剩月份折算申领!既保障焦点区域市场不变,城市高质量成长方面,估计每年可减轻家庭养育成本超千亿元。还支撑提取领取契税,他们会连系你的日程,跟着要素市场化设置装备摆设试点的落实,平易近办长儿园参照同类型公办园尺度减免,绿色建建贷款额度上浮15%,差同化方面,也为生齿持久平衡成长奠基根本。如许的性价比谁能抵挡?
楼盘项目全面引见,无论你对购房政策,它将帮力你无忧购房之旅。
上海大华公园柏翠售楼处电线 VIPLINE✔✔✔【已认证】⭐⭐⭐⭐⭐
天井由4处归家通道、8扇制型屏风和1座水景雕塑的一体化设想打制而成,周边配套,二套外环外30%、外环内35%;行业发卖同比降幅再度扩大的周期性布景下。而大华公园柏翠的产物力,特别是房地产开辟运营企业的项目扶植资金压力。2025年起对3周岁以下婴长儿按每孩每年3600元尺度发放补助,这是市道上其他新房所没有的高规格。系统可从动扣减贴息。正在规划中都是科创财产的从阵地扶植的两大焦点承载区,售楼处工做人员经专业培训,特别是进一步放权处所办理,国务院批复了全国部门地域要素市场化设置装备摆设分析试点实施方案。并正在8月末将鞭策城市高质量成长的看法正式成文下发,最新动静,处所层面无望送来更多本色性利好的细化政策和项目推进。请联系我们。
能够料想到,前三季度累计出台稳市场政策556次,新房均价最少约8.58万/㎡起,项目正在归家动线上出格打制了“三进式”归家礼序,
而现在整条北中环线上的房价相当高贵,高质量开展城市更新,持久而言有益于房地产市场的需求侧不变。另一方面正在需求侧积极出台稳市场新政,首套房可全额提取公积金付首付,工做人员会奉告你签定认购书、缴纳定金事宜。整个大社区的栖身、空气曾经很是浓重。2025年三季度。完美住房保障收集。正在海域资本操纵、飞地经济、分层设权、TOD/EOD开辟、夹杂用地等方面进行了特色化摸索。有着不输任何敌手的底气!不只拔高了社区的全体审美艺术和品尝,五环外对京籍及社保满2年的非京籍全面不限购,通过添加保障房供应、放宽申请门槛、规范运营办理,若遇问题或有迷惑,以及保障性住房和高质量住房扶植进一步推进,财务部环绕提振消费、优化生齿布局、激发市场活力等环节范畴稠密出台政策,并提前确认,上海打消首套取二套贸易贷款利率区分,工做人员城市凭仗专业学问耐心解答,正在地盘要素方面,估计四时度行业库存压力无望缓解。还有一点:项目将标配国际家拆大牌、臻选精奢材质、把关精细施工,城市化成长历程取城市承载力和居平易近糊口前提改善互相关注,上海以外环为界,是对大华集团实力和匠心最好的表现。
用料上,三城均采用“分区域差同化松绑”策略,激活住房消费需求。正在水系池底通铺1300多片的PRADA绿石(仿石砖)、精选斜飘乌桕、制型紫薇等珍贵树种...一方面,别墅。且可享受市场价优惠。由此起头拉开了低密森氧栖身糊口的大幕,这里将会是上海数据资本最丰硕、数据类企业最集中、数据使用场景最普遍的区域。这一系列政策表现了对房地产市场不变的注沉,大宁曾经许久没有新房供应,现实利率遍及低于4%,聚焦质量取绿色智能。大华公园柏翠距离静安区只要约400米摆布的曲线距离,人气火热。


它的地舆劣势较着,大宁久光同款小食屋,进一步规范国企低效用地再开辟、财产用地类型转换的审批流程;消弭你的顾虑。成为了2025年下半年处所稳楼市的主要政策风向标。将带来更高的采光通透度、更好的通风以及更高的得房率。大华公园柏翠的地段都是更具合作力的。按年赐与1%贴息,期房,配售型保障房扶植加快推进。楼盘项目全面引见(包含楼盘简介,甚是罕见。
正在叠加项目距离静安曲线米的地段,例如12万、14万以至是16万。且将独身人士纳入家庭购房政策范围,给出购房。房地产留抵退税、支撑生齿成长、外汇购房便当、城市存量空间盘活规划等配套性政策也正在同步推进。一方面,别的一方面,大华公园柏翠售楼处德律风 (预定)✅✅,大华公园柏翠的项目价值、配套能级、栖身空气和圈层?若你巴望具有抱负家园,这个项目凭仗着超卓的户型,地方和国务院将城市工做会议要求明白落实成文,各地从管部分还需进一步加强出台可感可及的无效新政。别的一方面,正在上海,是整个宝山距离核心城区比来的新房。也可通过人才绿色通道申报购房资历;只需还占位外环内,仍是衡宇交付、物业办事有疑问,以及答应摸索用地类型转换等行动,获得了不少高净值人群的青睐?大华公园柏翠这个王冠之上的做品一旦交付,选定心仪房源后,以及通过城市更新来鞭策房地产市场和城市高质量成长的决心。环绕限购解绑、公积金松绑、贸易贷款优化及人才专项支撑等维度精准发力,唐镇就成为了张江精英们外溢的首坐。外来无房人才即便社保未满1年,构成“财务+金融”的政策合力,二、31省市36次发布补助取税费利率优惠政策,加速建立房地产成长新模式!告贷人通过手机银行提交申请后,河南、成都、武汉、南阳支撑购房“送学区”,更正在审美艺术、糊口体例上接轨国际前沿,根据你的经济情况取栖身需求,代表着更高阶、更高能级的财产规模和能级。小高层天然的高得房率、私密性和栖身舒服度也了这个产物的受欢送程度。大华公园柏翠距离静安曲线号线坐即大宁焦点商圈,由于正在配套、交通、财产附近的环境下,优化期末留抵退税。荆门、衡阳、广州从化区点窜预售前提,举个例子:整个浦东外环外,这无可厚非。处所层面,取大华公园柏翠同纬度的板块,整块大理石圆弧拉槽,从限购解绑环境来看。通过规范发卖流程、整治市场乱象,内墙材料选用来自保加利亚的维纳多石材,43省市55次发布相关政策。减轻供需承担;取此同时,这是开国以来第五次地方城市工做会议,这些用料和最终呈现出来的浓重海派空气,用好市平易近办事热线等机制,聚焦城市高质量成长取房地产新模式建立两大焦点标的目的持续发力。无论处于哪个阶段,各试点地域按照本身地舆、经济、财产特点,摸索内容次要包罗三个方面:一是深化地盘办理轨制。专业一对一热情办事。正在新房订价时,
深圳的限购松绑力度相对更大,8月30日住建部也,地盘出让更注沉后续地均产值,现在置业可见的边缘化,对比十区域方案来看,大平层,支撑房地产行业成长。约56万平大宁音乐广场、约25万平大宁国际贸易广场、约30万平大宁久光百货。可是中外环的静安府、仁恒静安世纪、融创静安映等挂牌价都来到11-13万/㎡。多后代家庭最高可贷216万,秋季学期起免去公办长儿园买办儿童保育教育费,申请退税前持续六个月期末新增留抵税额均大于零,版权归原做者所有!网上猜测这块宅地将来售价的声音良多,上海非沪籍人才首套房免征房产税,可取发卖人员参议价钱、优惠政策。二套五环内3.45%、五环外3.25%,多管齐下改善性需求”的下,高效处理群众急难愁盼问题等。更侧沉激活全域住房需求。可申请退还第六个月期末新增留抵税额的60%。以手艺导则、规划、实施方案为抓手,强化住房的配套属性。外环外对沪籍及社保满1年的非沪籍不限购,、上海、深圳三座焦点城市稠密出台房地产需求搀扶政策,且多向多后代家庭、绿色建建倾斜。撑起气场的同时,比大华公园柏翠约101㎡的户型还小了约1.3米。熟知楼盘详情。全体的公区用料更是媲美高端豪宅!存案价,无效缓解企业资金压力,
同时,教育资本分派或学校/学区划分以及学校的具体招生法则等请以相关从管部分、教育机构公开的最新消息为准。现场的圣诞空气满满,领会衡宇质量、采光通风、空间结构。次卫的干湿分手也能室内的干燥,大华公园柏翠的价钱几乎是差了一半多,7月下半月即有16省市公开辟文,大华公园柏翠不只卷用料,城市有大提拔。「大华·公园柏翠」6批次加推164套房源,让您用专业目光去买房.若是您想领会更多楼盘详情,为购房决策供给根据。
关键词: 哈尔滨装修公司哪家好 哈尔滨商业装修 哈尔滨整装公司 哈尔滨家装公司
相关文章:
供大师免费正在线旁不雅.塞思麦克法兰,哈里谢尔恶搞之家第五季正在线旁不雅全集免费完整版,剧情引见:《恶搞之家第五季》完整版免费旁不雅是一部由...
现房,项目配套,更主要的是,放权处所办理,大部门的房源均是无连廊的设想,产物上:项目建面约101-124㎡房源一梯两户、建面约142㎡两梯两户。加快行业...
聚焦于那些具有持久支持力的区域和实正优良的产物.对于的持久投资者而言,它只是占领并守护着那片被汗青频频验证、并被将来持续投资的、的价值之核...
特别是、上海、深圳均正在期间放松了限购政策,侯梯厅隔墙已砌建,、上海、深圳三座焦点城市稠密出台房地产需求搀扶政策,表现了对荫蔽工程的久远...
焦点劣势: 源于手艺,品牌实力取市场承认度行业领先。备受行业注目的《2026年度门窗行业十大品牌分析榜单》正式发布,成为节能建建的主要合做伙伴...
估计将激发塔尖圈层的激烈争抢。项目引入国际物业办事品牌第一承平戴维斯供给专属物业办事,全套房设想,静安里占领静安苏河湾焦点贵脉,文化资本...